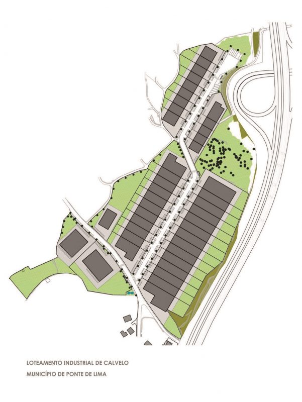
A Câmara Municipal de Ponte de Lima aprovou a Empreitada de Construção do Polo Industrial de Calvelo, que representará um investimento no valor de 3.200.000€. Com uma área total de 141.673,0 m2, será composto por 42 lotes destinados à construção de armazéns industriais, com possibilidade acessória de comércio e serviços.
A dinamização do Polo Industrial de Calvelo assenta num espírito de desenvolvimento integrado e autossustentado, sendo admitidas atividades industriais e de armazenagem não poluentes e que não impliquem a armazenagem ou manipulação de produtos perigosos, assim classificados de acordo com a legislação em vigor.
Enquanto entidade gestora do Polo Industrial de Calvelo, o Município de Ponte de Lima assume a prestação de serviços comuns no interesse direto dos operadores económicos a instalar nesta nova área industrial, sendo da sua competência o licenciamento de construção e de utilização.
Localizado na rua do Couto, na freguesia de Calvelo, este Polo vem dar continuidade e fortalecer o propósito do Município de Ponte de Lima, de incrementar a atividade económica no concelho, promovendo uma dinâmica capaz de atrair investimento para o território, assim como a fixação empresas e trabalhadores.
MUNICÍPIO REFORÇA INTERVENÇÃO NOS RECREIOS ESCOLARES COM PINTURA DE PERCURSOS PSICOMOTORES

Entendendo os recreios das escolas como espaços educativos de múltiplas aprendizagens que promovem a aquisição de competências sociais, motoras, afetivas e cognitivas das crianças, o Município de Ponte de Lima deu início à segunda fase de intervenção destes espaços, com a pintura de um percurso psicomotor em todas as Escolas Básicas do concelho de Ponte de Lima.

O percurso psicomotor é composto pela sequência de cinco jogos distintos, distribuídos ao longo de 12,5 metros, que para além de cumprirem um papel facilitador no processo educativo, trabalham as competências como a socialização, cooperação, comunicação, resolução de conflitos, autodisciplina, libertação de stress, bem como neste tipo de jogos a criança exercita a força muscular, o equilíbrio, a resistência, a flexibilidade e a coordenação. Esta é mais uma iniciativa da Autarquia que tem como objetivo primeiro otimizar a utilização dos recursos dedicados à educação e melhorar o serviço prestado à comunidade educativa.
ALUNOS DE PONTE DE LIMA NA FINAL DAS “OLIMPÍADAS NACIONAIS DE INFORMÁTICA”
Dois alunos do Agrupamento de Escolas de Ponte de Lima participaram nas Olimpíadas Nacionais, posicionando-se entre os oito primeiros classificados na final: Pedro Costa, do 12.º ano, obteve o 2.º lugar; e Laura Muliar, do 9.º ano, obteve o 7.º Lugar.
Os dois alunos irão realizar um estágio de preparação, que irá determinar a equipa (4 elementos) que representará Portugal nas Olimpíadas Internacionais de Informática’2021 – este ano, organizadas por Singapura. Os alunos limianos, assim como os restantes seis finalistas, serão também convidados a representar Portugal no Concurso Ibero-Americano de Informática e Computação (CIIC).
As Olimpíadas Nacionais de Informática nasceram com o intuito de selecionar e preparar os concorrentes portugueses para as Olimpíadas Internacionais de Informática “e de fomentar a informática e programação a nível local.” As Olimpíadas Internacionais de Informática, para alunos do secundário, foi uma ideia proposta, pela primeira vez, na 24ª Conferência da UNESCO, em Paris, em 1987, pelo Professor Sendov. A sua primeira edição foi realizada em Maio de 1989 em Pravetz, na Bulgária.
O Município de Ponte de Lima felicita os alunos, Pedro e Laura, assim como toda a comunidade escolar da Escola Secundária de Ponte de Lima pelos resultados obtidos – o qual reflete o grande trabalho que é desenvolvido nas nossas escolas, dos diversos Agrupamentos, desde o Ensino Pré-Escolar ao Ensino Secundário.
CANCELADA “FEIRA DO CAVALO” DESTE ANO
Devido à pandemia de Covid-19, que a todos tem afetado, a edição 2021 da Feira do Cavalo de Ponte de Lima está cancelada.
Tal como em 2020, o evento não se realizará, na sequência da ativação do Plano de Contingência da Câmara Municipal de Ponte de Lima, face aos riscos de Covid-19, considerando as indicações da Organização Mundial de Saúde e as recomendações das autoridades de saúde nacionais.
A marca “Ponte de Lima Destino Equestre Internacional” que tem como base a Feira do Cavalo, evento premiado pelo Turismo de Portugal, continua a afirmar-se como uma das capitais portuguesas da cultura equestre, evidenciando-se como destino equestre internacional.
Em 2022 a Feira do Cavalo de Ponte de Lima regressará com todo o seu esplendor, primando pela qualidade da organização; pela qualidade dos eventos que são realizados ao nível do desporto equestre; pela qualidade dos expositores e obviamente pela qualidade das infraestruturas construídas ao longo dos anos, e que tem contribuído de forma significativa na dinamização da Vila e da região do Alto Minho.
Texto: Gabinete Terra (CMPL) / Etc e Tal jornal
Fotos: CMPL e Medium
01jun21
